Jetzt auf fertighaus.com
kostenlose Infos anfordern!

Edition S 165


get social

Edition S 165

Wolf-Haus-GmbH

Preis Ausbauhaus:
ab 337.195 EUR
Preis Schlüsselfertig:
ab 478.196 EUR
Wohnfläche:
165,06 qm
Bauweise:
Fertighaus
Etagenzahl:
2
Dachform:
Walmdach 16°


Mediterranes Flair für ein entspanntes Leben. Durch den gegliederten Baukörper mit 2-stöckigem Zentrum, einer schattenspendenden Terrassenüberdachung und die Farbgestaltung in warmen Tönen erhält dieser Hausentwurf seine südländische Anmutung.

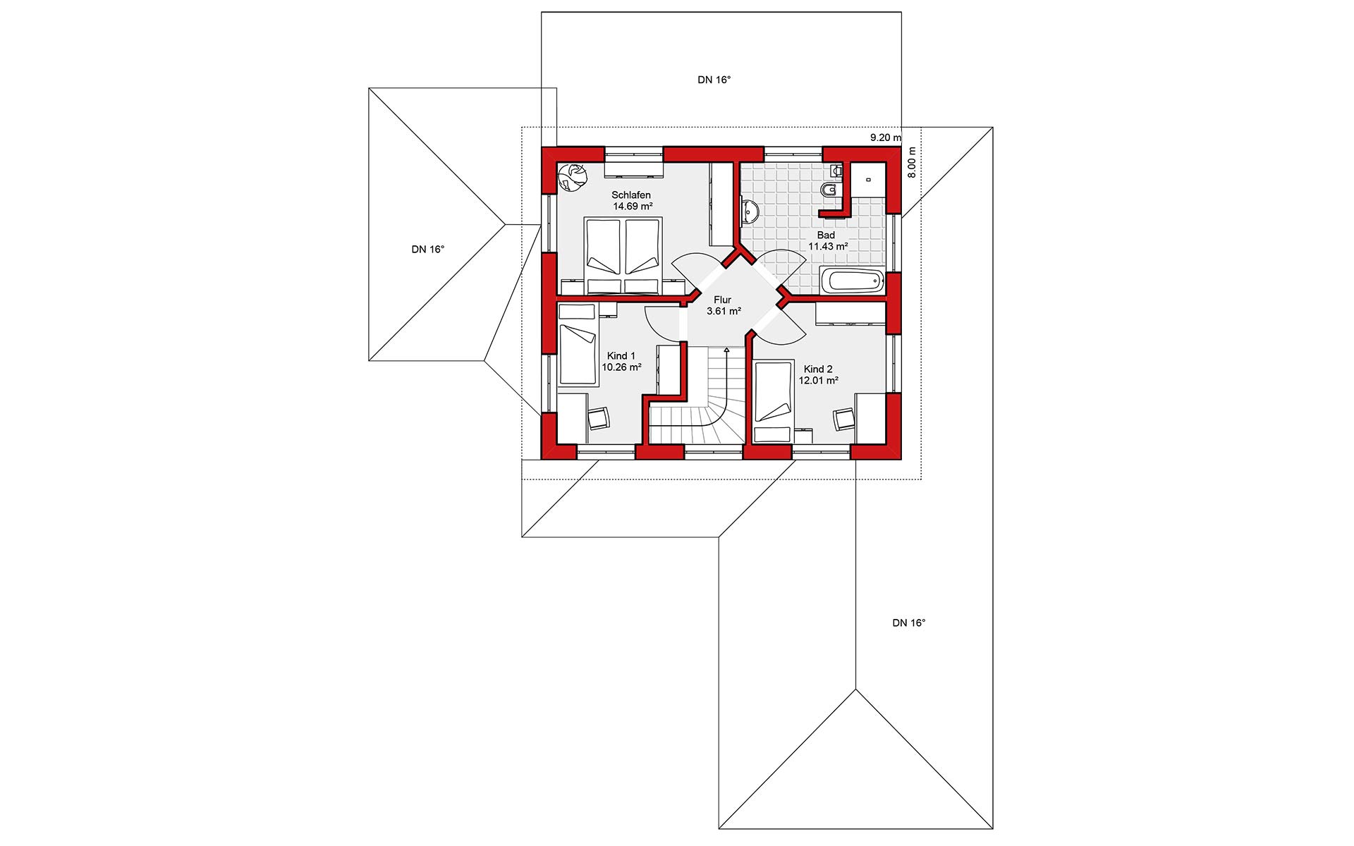
Bei der Grundrissgestaltung fällt die sehr praktische Verbindung der Garage über den Haustechnikraum zur Küche auf. Die offene Küche wurde mit einer großen Kochinsel zum Essbereich geplant.

Ein ebenfalls im Erdgeschoss liegendes Home-Office macht dieses Haus auch für das Arbeiten von Zuhause interessant.
Information zum schlüsselfertigen Haus
Der Preis bezieht sich auf die Ausbaustufe Fast Fertig ab Oberkante Keller bzw. Bodenplatte. Ohne Wandoberbeläge jedoch Qualitätsstufe Q2 gespachtelt, ohne Fußbodenbeläge (Bad u. WC gefliest).
get social
Anschrift
Wolf-Haus-GmbH
Koppenmühle
97705 Burkardroth-Gefäll
Deutschland

Impressum - Datenschutz - AGB
MedienTeam Verlag GmbH & Co. KG - Verbindungsstraße 19 - D-40723 Hilden
Häuser - Hausbau - Ausbau - Technik - Draußen - Wohnen - News - Spezial - Gewinnspiel