Jetzt auf fertighaus.com
kostenlose Infos anfordern!

Edition S 150


get social

Edition S 150

Wolf-Haus-GmbH

Preis Ausbauhaus:
ab 319.102 EUR
Preis Schlüsselfertig:
ab 465.336 EUR
Wohnfläche:
149,66 qm
Bauweise:
Fertighaus
Etagenzahl:
2
Dachform:
Flachdach 2°


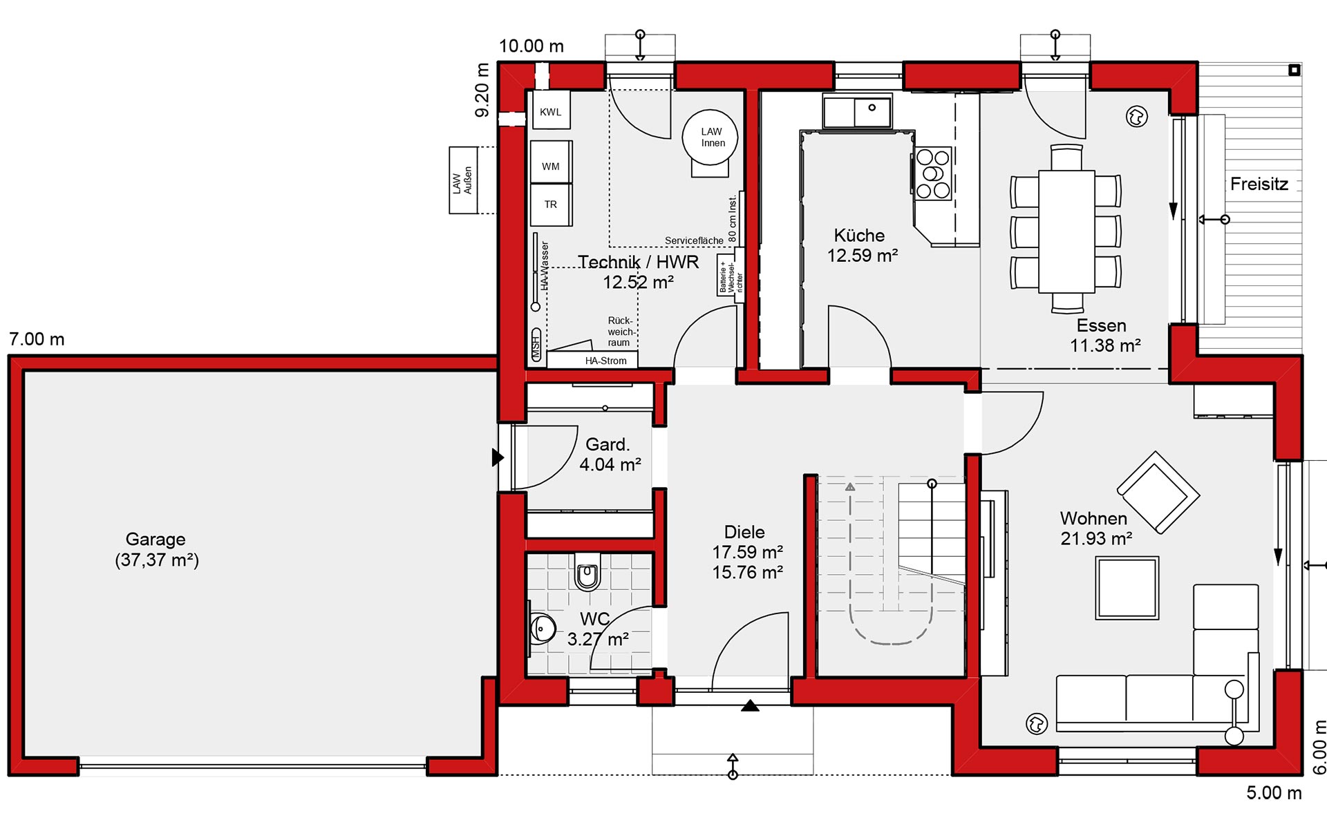
Sehr elegant sind hier die Akzente bei der Aussengestaltung gesetzt. Und auch die gerade Linienführung bei der Haustürüberdachung trägt zum souveränen Erscheinungsbild bei. Der Grundriss ist für das komfortable Zusammenleben einer 4-köpfigen Familie ausgelegt.
Information zum schlüsselfertigen Haus
Der Preis bezieht sich auf die Ausbaustufe Fast Fertig ab Oberkante Keller bzw. Bodenplatte. Ohne Wandoberbeläge jedoch Qualitätsstufe Q2 gespachtelt, ohne Fußbodenbeläge (Bad u. WC gefliest).
get social
Anschrift
Wolf-Haus-GmbH
Koppenmühle
97705 Burkardroth-Gefäll
Deutschland

Impressum - Datenschutz - AGB
MedienTeam Verlag GmbH & Co. KG - Verbindungsstraße 19 - D-40723 Hilden
Häuser - Hausbau - Ausbau - Technik - Draußen - Wohnen - News - Spezial - Gewinnspiel