Jetzt auf fertighaus.com
kostenlose Infos anfordern!

Edition E 203


get social

Edition E 203

Wolf-Haus-GmbH

Preis Ausbauhaus:
ab 323.822 EUR
Preis Schlüsselfertig:
ab 502.727 EUR
Wohnfläche:
203,00 qm
Bauweise:
Fertighaus
Etagenzahl:
2
Dachform:
Pultdach 15°


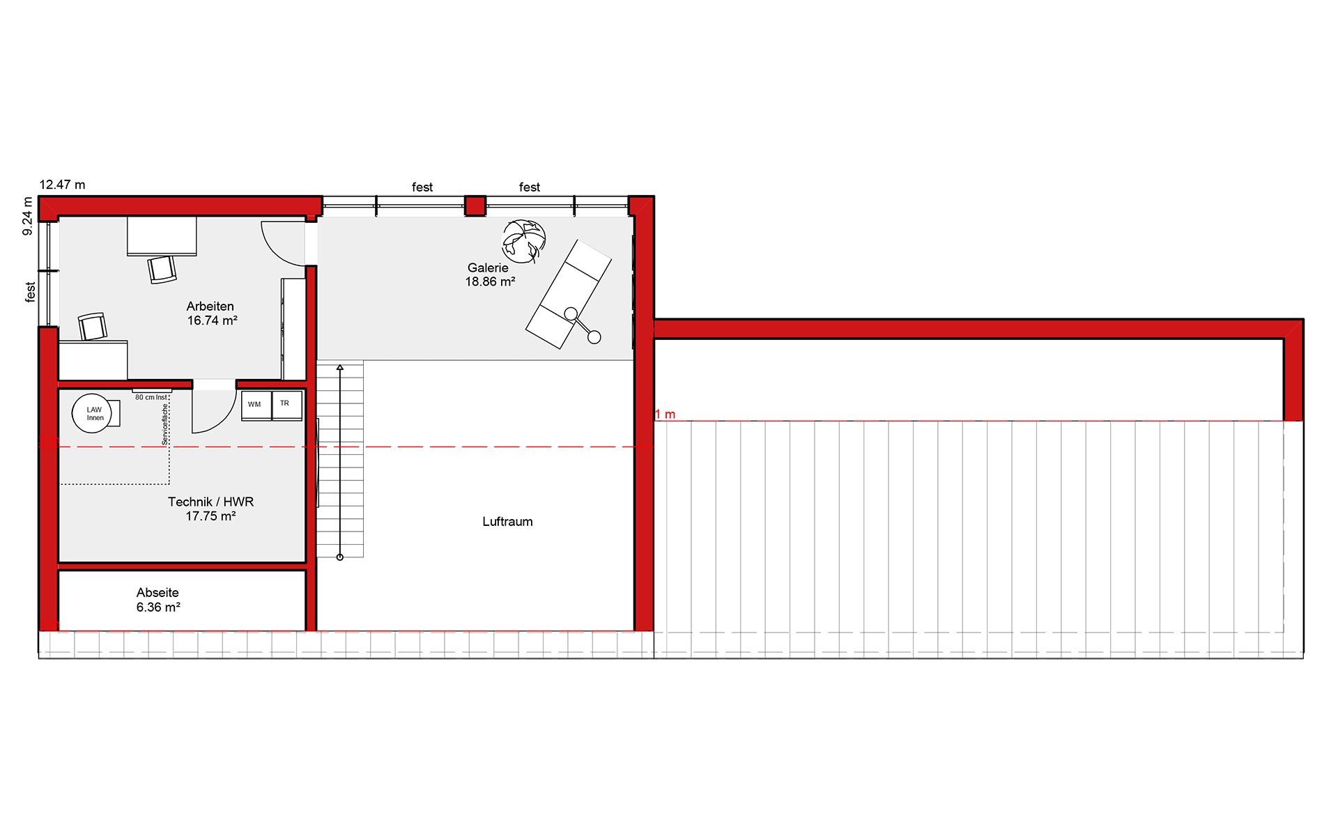
Stilsicher auf das Wesentliche reduziert zeigt sich dieser Entwurf. Die klare Linie wird durch die optische Trennung der beiden Baukörper mit einer Holz- und Putzfassade noch zusätzlich verstärkt. Im Anschluss an den nach oben geöffneten Wohnbereich reihen sich die Schlafräume mit zwei Bädern und einer Ankleide auf.
Information zum schlüsselfertigen Haus
Der Preis bezieht sich auf die Ausbaustufe Fast Fertig ab Oberkante Keller bzw. Bodenplatte. Ohne Wandoberbeläge jedoch Qualitätsstufe Q2 gespachtelt, ohne Fußbodenbeläge (Bad u. WC gefliest).
get social
Anschrift
Wolf-Haus-GmbH
Koppenmühle
97705 Burkardroth-Gefäll
Deutschland

Impressum - Datenschutz - AGB
MedienTeam Verlag GmbH & Co. KG - Verbindungsstraße 19 - D-40723 Hilden
Häuser - Hausbau - Ausbau - Technik - Draußen - Wohnen - News - Spezial - Gewinnspiel