Jetzt auf fertighaus.com
kostenlose Infos anfordern!

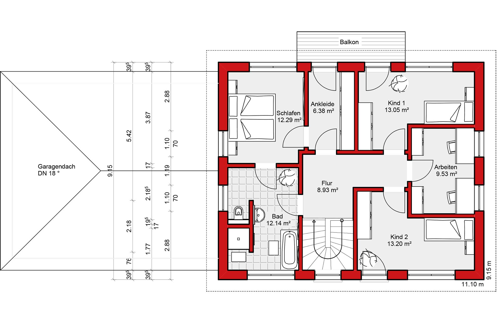
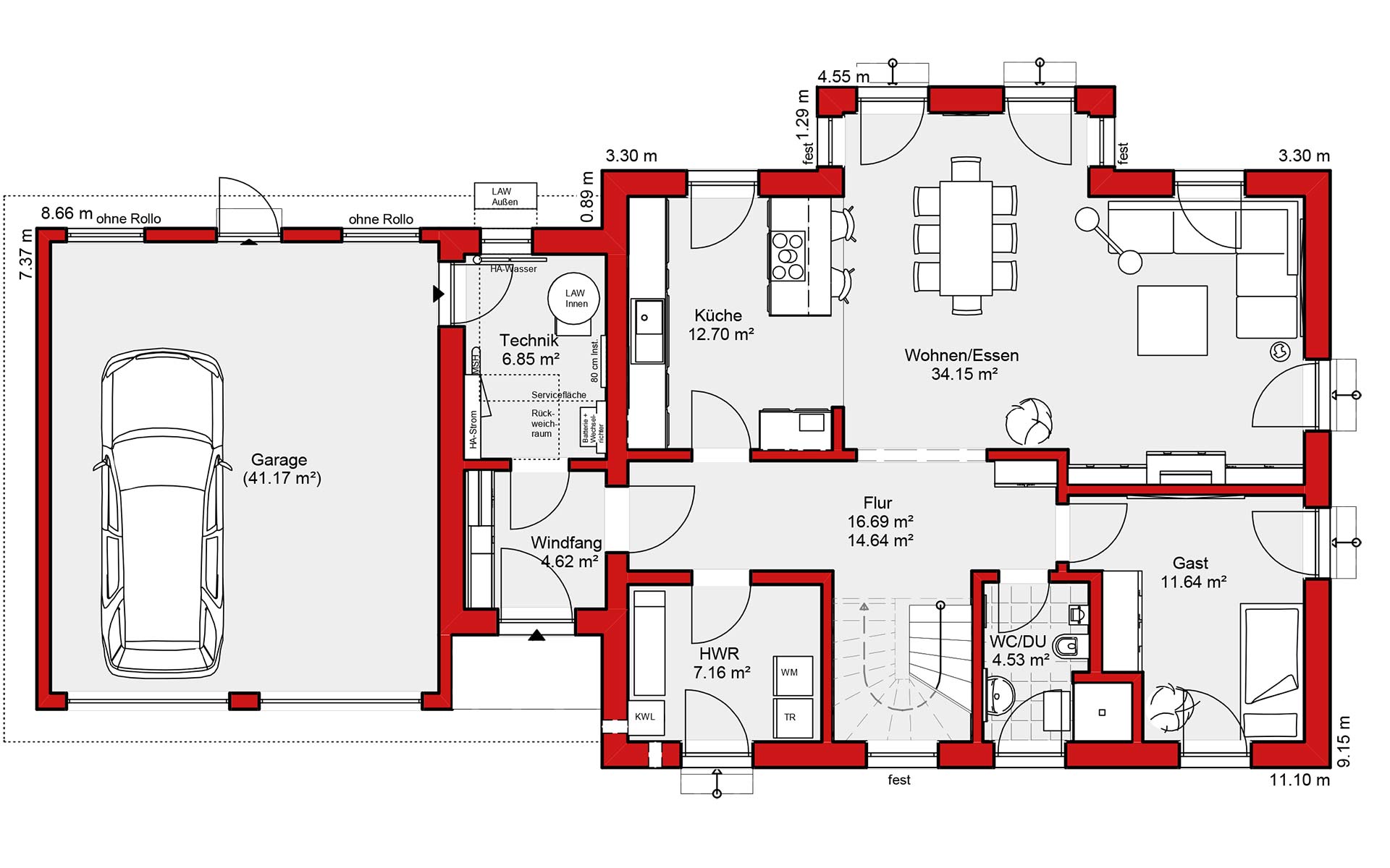
Edition S 174


get social

Edition S 174

Wolf-Haus-GmbH

Preis Ausbauhaus:
ab 303.341 EUR
Preis Schlüsselfertig:
ab 458.801 EUR
Wohnfläche:
173,86 qm
Bauweise:
Fertighaus
Etagenzahl:
2
Dachform:
Walmdach 22/18°


Der elegante Eindruck entsteht durch die klare architektonische Gliederung und Farbgestaltung. Auch hier wird eine Garage perfekt integriert und der Bereich zum Haus für einen Windfang und einen Technikraum genutzt. Das Erdgeschoss bietet zusätzlichen Platz für ein Gästezimmer.
Information zum schlüsselfertigen Haus
Der Preis bezieht sich auf die Ausbaustufe Fast Fertig ab Oberkante Keller bzw. Bodenplatte. Ohne Wandoberbeläge jedoch Qualitätsstufe Q2 gespachtelt, ohne Fußbodenbeläge (Bad u. WC gefliest).
get social
Anschrift
Wolf-Haus-GmbH
Koppenmühle
97705 Burkardroth-Gefäll
Deutschland

Impressum - Datenschutz - AGB
MedienTeam Verlag GmbH & Co. KG - Verbindungsstraße 19 - D-40723 Hilden
Häuser - Hausbau - Ausbau - Technik - Draußen - Wohnen - News - Spezial - Gewinnspiel