Jetzt auf fertighaus.com
kostenlose Infos anfordern!

Erlangen


get social

Erlangen

Fertighaus WEISS GmbH

Preis Schlüsselfertig:
ab 359.000 EUR
Wohnfläche:
144,00 qm
Bauweise:
Fertighaus
Etagenzahl:
1,5
Dachform:
Satteldach 32°


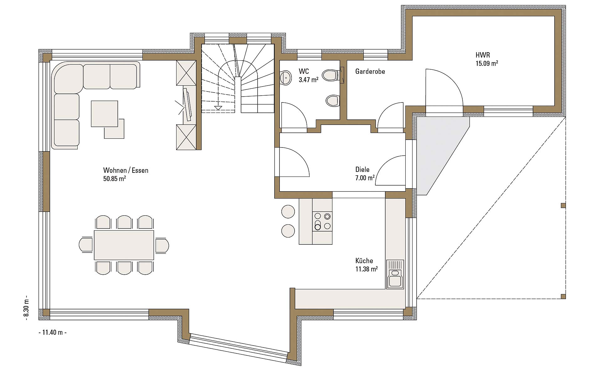
Das Plusenergiehaus Erlangen vereint in seiner Außenansicht traditionelle Elemente mit Bestandteilen moderner Architektur, beispielsweise in der Kombination einer Holz- und Putzfassade. Während das Erdgeschoss offen gestaltet wurde, können im Dachgeschoss bis zu drei Kinderzimmer untergebracht werden.
get social
Anschrift
Fertighaus WEISS GmbH
Sturzbergstraße 40-42
74420 Oberrot-Scheuerhalden
Deutschland

Impressum - Datenschutz - AGB
MedienTeam Verlag GmbH & Co. KG - Verbindungsstraße 19 - D-40723 Hilden
Häuser - Hausbau - Ausbau - Technik - Draußen - Wohnen - News - Spezial - Gewinnspiel