Jetzt auf fertighaus.com
kostenlose Infos anfordern!

Concept Design 245 edition


get social

Concept Design 245 edition

FAVORIT Haus- Vertriebs GmbH

Preis Schlüsselfertig:
ab 530.310 EUR
Wohnfläche:
245,93 qm
Bauweise:
Massivhaus
Etagenzahl:
2
Dachform:
Flachdach


Sie lieben große Räume und das Gefühl von Freiheit?
Licht und Schatten durchfluten das gesamte Gebäude mit seinem schillernden Marmor. Ein Hauch von Luxus liegt in der Luft. 

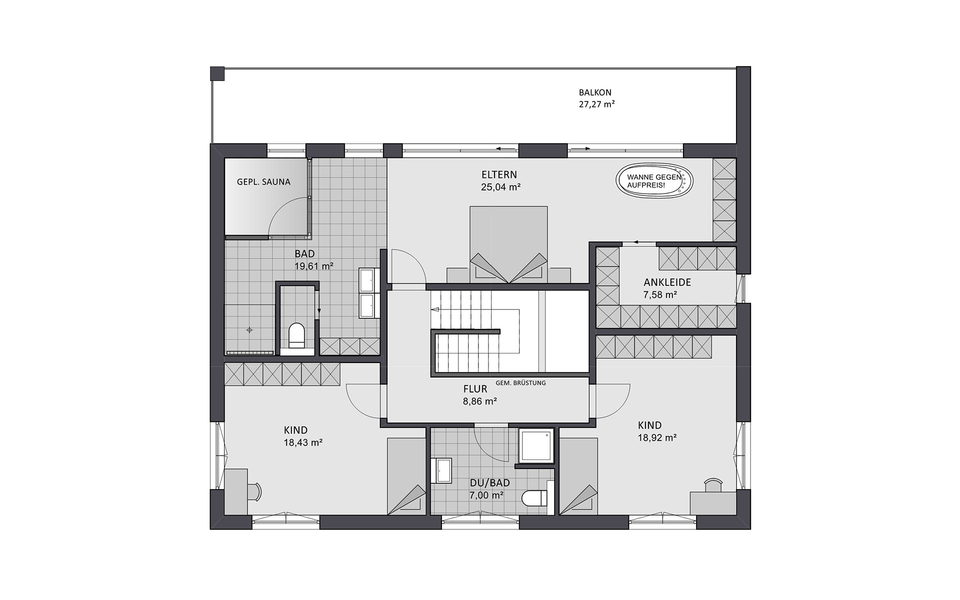
Das alles vereint unser CONCEPT DESIGN 245 edition. Der Grundriss orientiert sich dabei mit seinen hohen offenen Fensterflächen zum Süden hin und somit direkt zur Gartenseite. Das Erdgeschoss verfügt über eine großzügige Eingangshalle, die im weiteren in den Flur mit atemberaubendem Luftraum übergeht. Weitere fließende Übergänge zwischen den einzelnen Wohnbereichen unterstreichen den loftartigen Charakter des Entwurfes. Der Wohnbereich gliedert sich in die offene Küche, den Essbereich in Anlehnung an das offen gestaltete Treppenhaus und das Wohn-zimmer mit angeschlossener Bibliothek als Rückzugsraum. Der seitlich gelegene Hauswirtschaftsraum bietet die Möglichkeit eines Nebeneingangs z.B. zur Garage oder Carport. Über den hellen Treppenaufgang gelangt man in das Obergeschoss. Stilsicher und komfortabel erwartet Sie hier der Elternbereich mit angeschlossenem Sauna- und Badbereich auf der einen Seite, und mit einer Ankleide auf der anderen Seite. Die Möglichkeit einer freistehenden Badewanne im Schlafbereich rundet das Gesamtkonzept ab.In den zwei nahezu gleich-großen Kinderzimmern finden die „Kleinen“ Ihre Ruhezone. 
Information zum schlüsselfertigen Haus
Alle Preise beziehen sich auf "Kompletthaus mit Bodenplatte"
get social
Anschrift
FAVORIT Haus- Vertriebs GmbH
Krummer Weg 50-52
59519 Möhnesee
Deutschland

Impressum - Datenschutz - AGB
MedienTeam Verlag GmbH & Co. KG - Verbindungsstraße 19 - D-40723 Hilden
Häuser - Hausbau - Ausbau - Technik - Draußen - Wohnen - News - Spezial - Gewinnspiel