Jetzt auf fertighaus.com
kostenlose Infos anfordern!

Privat 191


get social

Privat 191

Danwood S.A.- Zweigniederlassung Berlin

Nutzfläche:
190,14 qm
Bauweise:
Fertighaus
Etagenzahl:
1,5
Dachform:
Satteldach 30°


Privat 191

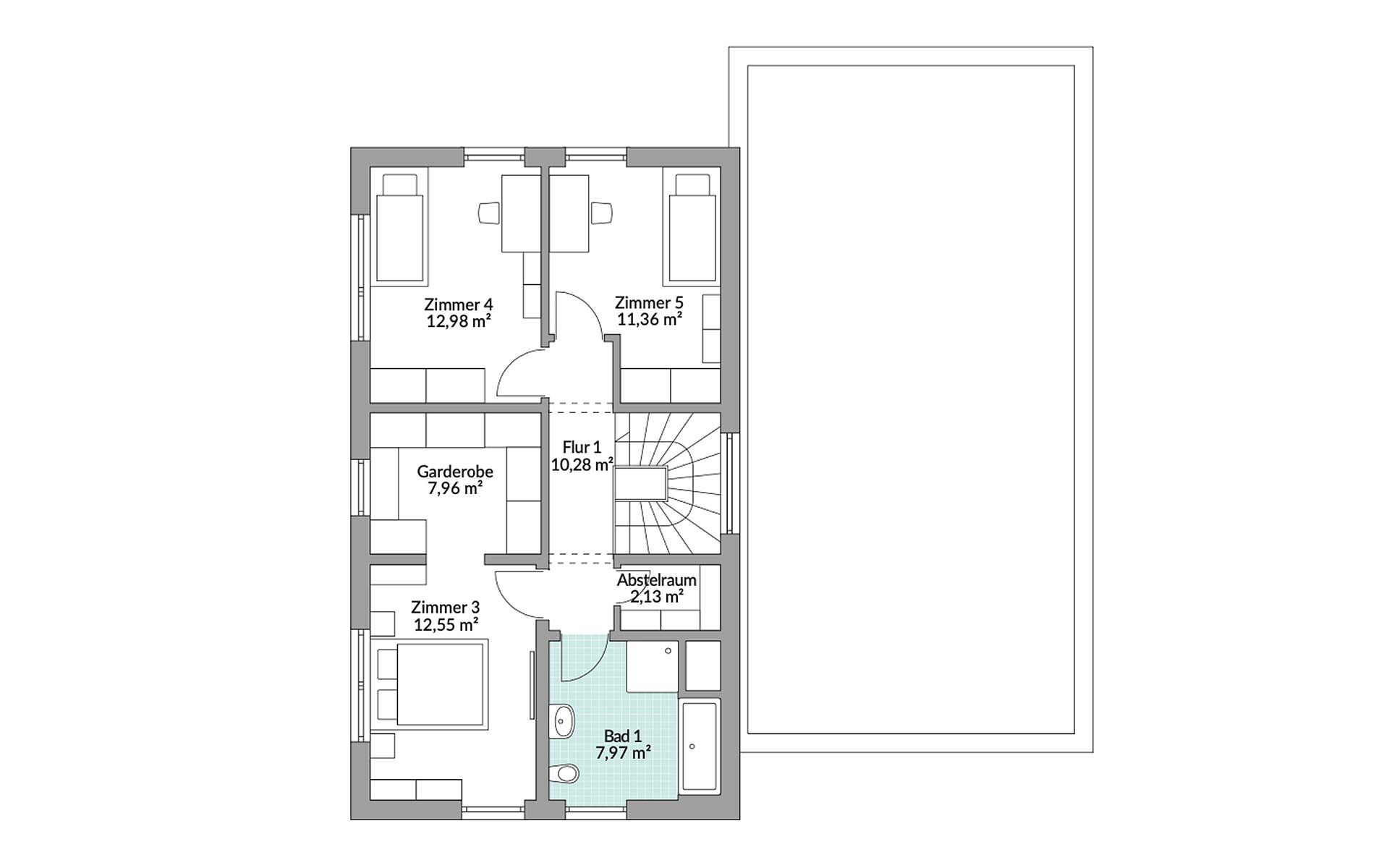
Eineinhalbgeschossiges Haus mit 5 Zimmern, Ankleide, Abstellraum, offener Küche, Bad, Gäste-WC, Diele und Hauswirtschaftsraum. Attika-Satteldach mit 30° Dachneigung. Kniestock 1,75 m. Ebenerdiger Anbau mit 2 Zimmern, offener Küche, Duschbad und Diele. Gemeinsamer Technikraum. Flachdach.
Information zum schlüsselfertigen Haus
Preis gilt inklusive Maler, Fliesen, Sanitär, Vinyl, Teppichboden und Technikpaket (Luft-Wasser-Wärmepumpe + Fußbodenheizung + zentrale Lüftungsanlage mit Wärmerückgewinnung) ab Oberkante Bodenplatte.
 
get social
Anschrift
Danwood S.A.- Zweigniederlassung Berlin
Justus-von-Liebig-Straße 7
12489 Berlin
Deutschland

Impressum - Datenschutz - AGB
MedienTeam Verlag GmbH & Co. KG - Verbindungsstraße 19 - D-40723 Hilden
Häuser - Hausbau - Ausbau - Technik - Draußen - Wohnen - News - Spezial - Gewinnspiel