Jetzt auf fertighaus.com
kostenlose Infos anfordern!

Perfect 137


get social

Perfect 137

Danwood S.A.- Zweigniederlassung Berlin

Preis Schlüsselfertig:
ab 260.600 EUR
Nutzfläche:
136,95 qm
Bauweise:
Fertighaus
Etagenzahl:
1
Dachform:
Walmdach 25°


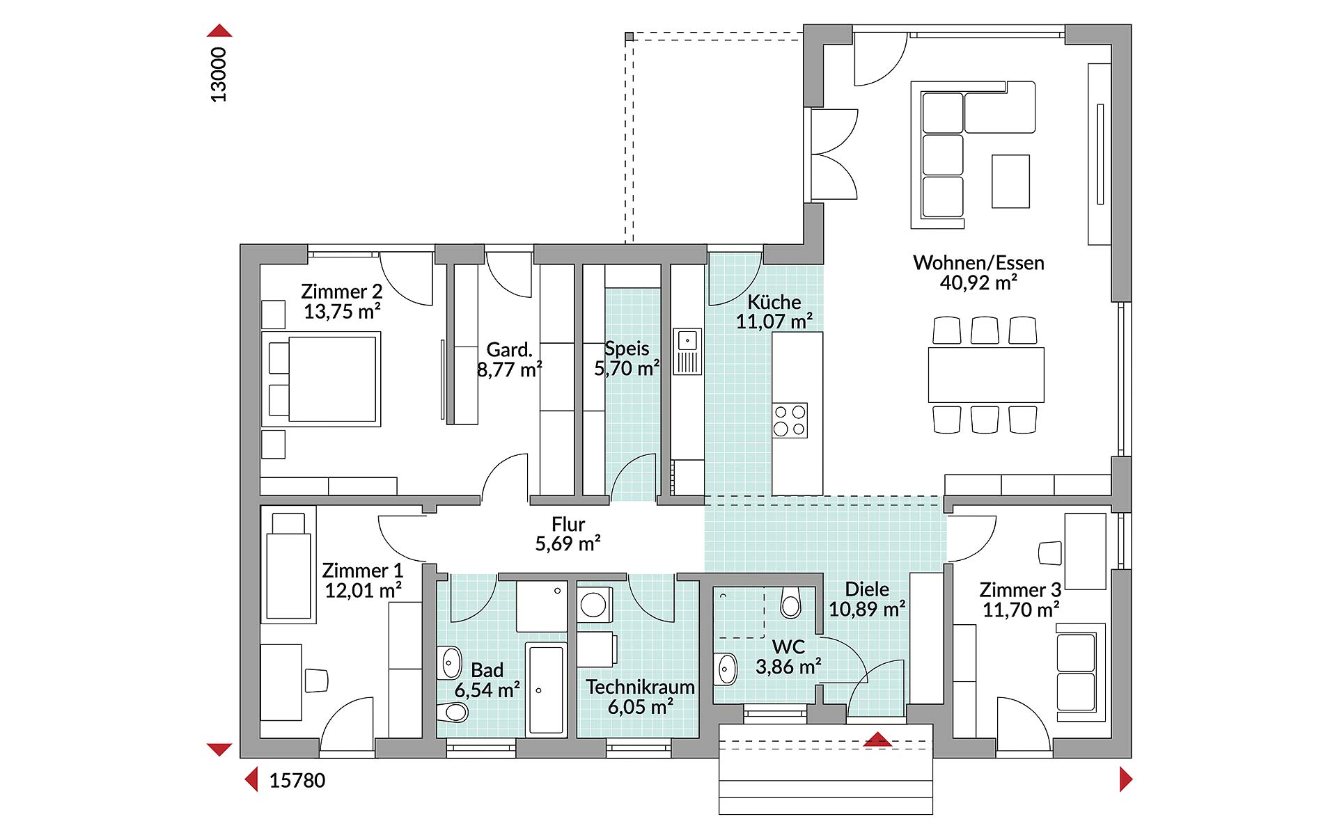
Winkelbungalow mit vier Zimmern, Ankleide, offener Küche, Speisekammer, Bad, Gäste-WC, Technikraum, Diele und Flur. Integrierte Eingangs- und Terrassenüberdachung. Walmdach mit 25° Dachneigung.

Im Preis enthalten: schlüsselfertig inkl. Maler, Fliesen, Laminat, Teppichboden und Technikpaket 1 (Gasbrennwerttherme + Lüftungsanlage mit Wärmerückgewinnung) ab OK Bodenplatte/Kellerdecke. *Abbildungen zeigen teilweise individuelle Zusatzausstattung.

SCHLÜSSELFERTIG

inklusive Maler, Fliesen, Sanitär, Vinyl, Teppichboden und Technikpaket (Luft-Wasser-Wärmepumpe + Fußbodenheizung + zentrale Lüftungsanlage mit Wärmerückgewinnung) ab Oberkante Bodenplatte
Information zum schlüsselfertigen Haus
Preis gilt inklusive Maler, Fliesen, Sanitär, Vinyl, Teppichboden und Technikpaket (Luft-Wasser-Wärmepumpe + Fußbodenheizung + zentrale Lüftungsanlage mit Wärmerückgewinnung) ab Oberkante Bodenplatte.
 
get social
Anschrift
Danwood S.A.- Zweigniederlassung Berlin
Justus-von-Liebig-Straße 7
12489 Berlin
Deutschland

Impressum - Datenschutz - AGB
MedienTeam Verlag GmbH & Co. KG - Verbindungsstraße 19 - D-40723 Hilden
Häuser - Hausbau - Ausbau - Technik - Draußen - Wohnen - News - Spezial - Gewinnspiel