Jetzt auf fertighaus.com
kostenlose Infos anfordern!

Perfect 112


get social

Perfect 112

Danwood S.A.- Zweigniederlassung Berlin

Preis Schlüsselfertig:
ab 227.200 EUR
Nutzfläche:
111,57 qm
Bauweise:
Fertighaus
Etagenzahl:
1
Dachform:
Walmdach 25°


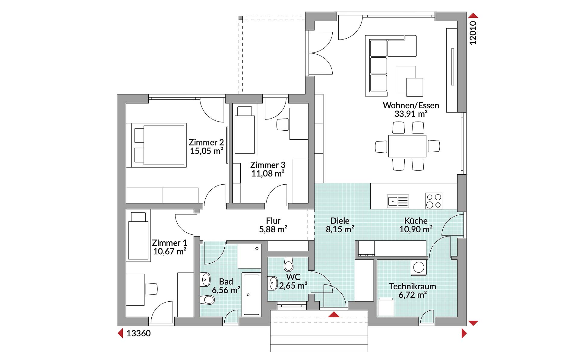
Bungalow mit 4 Zimmern, offener Küche, Bad, Gäste-WC, Technikraum, Diele und überdachtem Hauseingang. Walmdach mit 25° Dachneigung.

SCHLÜSSELFERTIG

inklusive Maler, Fliesen, Sanitär, Vinyl, Teppichboden und Technikpaket (Luft-Wasser-Wärmepumpe + Fußbodenheizung + zentrale Lüftungsanlage mit Wärmerückgewinnung) ab Oberkante Bodenplatte
Information zum schlüsselfertigen Haus
Preis gilt inklusive Maler, Fliesen, Sanitär, Vinyl, Teppichboden und Technikpaket (Luft-Wasser-Wärmepumpe + Fußbodenheizung + zentrale Lüftungsanlage mit Wärmerückgewinnung) ab Oberkante Bodenplatte.
 
get social
Anschrift
Danwood S.A.- Zweigniederlassung Berlin
Justus-von-Liebig-Straße 7
12489 Berlin
Deutschland

Impressum - Datenschutz - AGB
MedienTeam Verlag GmbH & Co. KG - Verbindungsstraße 19 - D-40723 Hilden
Häuser - Hausbau - Ausbau - Technik - Draußen - Wohnen - News - Spezial - Gewinnspiel