Jetzt auf fertighaus.com
kostenlose Infos anfordern!

Partner 117.1


get social

Partner 117.1

Danwood S.A.- Zweigniederlassung Berlin

Preis Schlüsselfertig:
ab 240.800 EUR
Nutzfläche:
116,70 qm
Bauweise:
Fertighaus
Etagenzahl:
1,5
Dachform:
Satteldach 30°


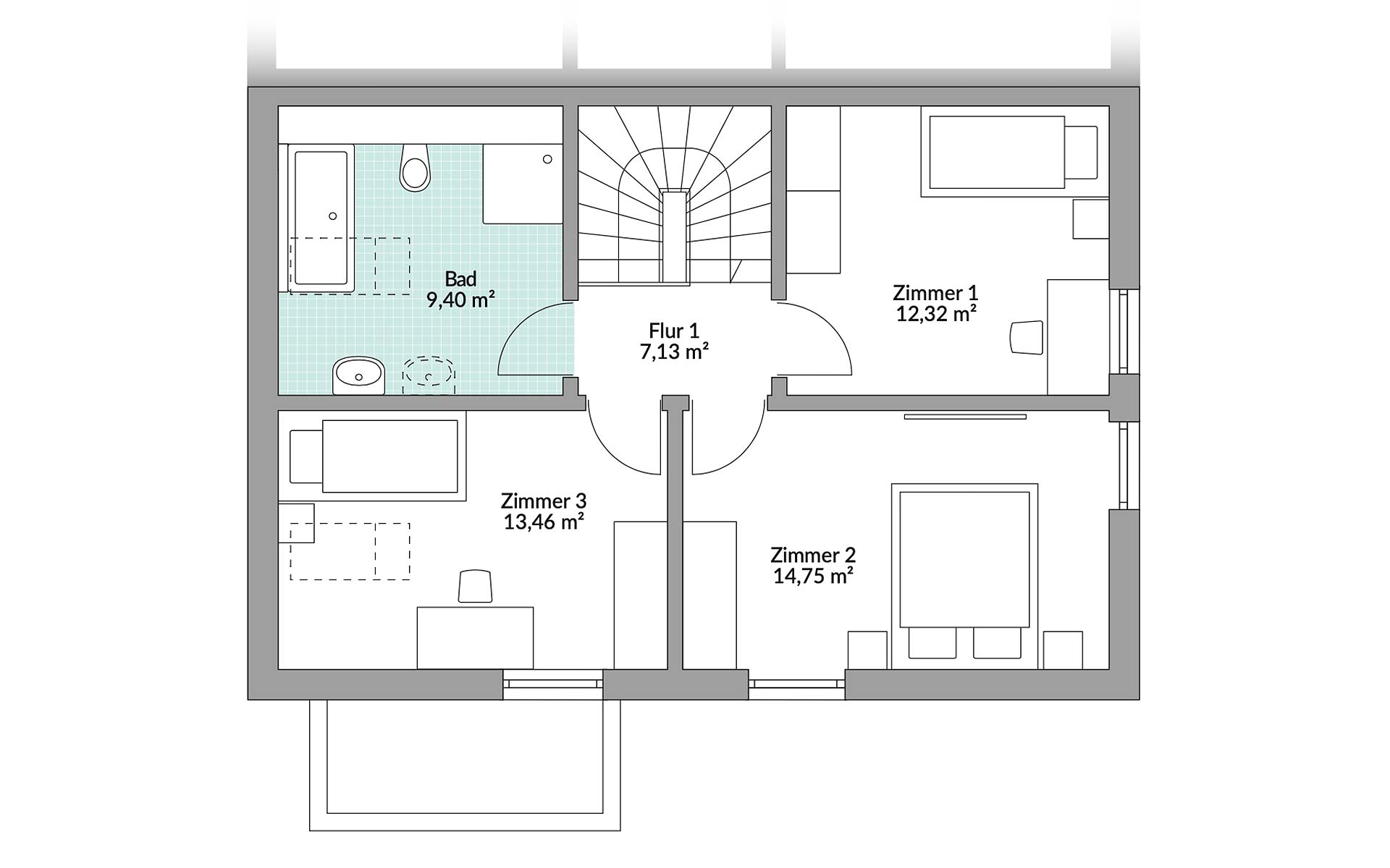
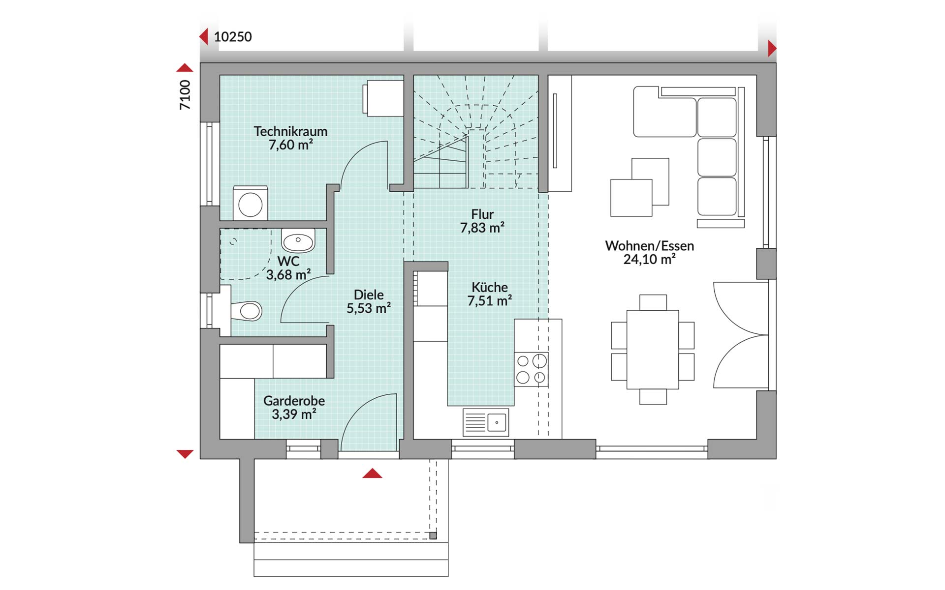
Eineinhalbgeschossige Doppelhaushälfte mit vier Zimmern, Küche, Bad, Gäste-WC, Technikraum, Diele und Garderobe. Satteldach mit 30° Dachneigung, Kniestock 1,50 m. Pultdachgaube und integrierte Flachdach-Eingangsüberdachung mit Seitenwand.

SCHLÜSSELFERTIG

inklusive Maler, Fliesen, Sanitär, Vinyl, Teppichboden und Technikpaket (Luft-Wasser-Wärmepumpe + Fußbodenheizung + zentrale Lüftungsanlage mit Wärmerückgewinnung) ab Oberkante Bodenplatte
Information zum schlüsselfertigen Haus
Preis gilt inklusive Maler, Fliesen, Sanitär, Vinyl, Teppichboden und Technikpaket (Luft-Wasser-Wärmepumpe + Fußbodenheizung + zentrale Lüftungsanlage mit Wärmerückgewinnung) ab Oberkante Bodenplatte.
 
get social
Anschrift
Danwood S.A.- Zweigniederlassung Berlin
Justus-von-Liebig-Straße 7
12489 Berlin
Deutschland

Impressum - Datenschutz - AGB
MedienTeam Verlag GmbH & Co. KG - Verbindungsstraße 19 - D-40723 Hilden
Häuser - Hausbau - Ausbau - Technik - Draußen - Wohnen - News - Spezial - Gewinnspiel