Jetzt auf fertighaus.com
kostenlose Infos anfordern!

Next 115 Poing


get social

Next 115 Poing

Danwood S.A.- Zweigniederlassung Berlin

Wohnfläche:
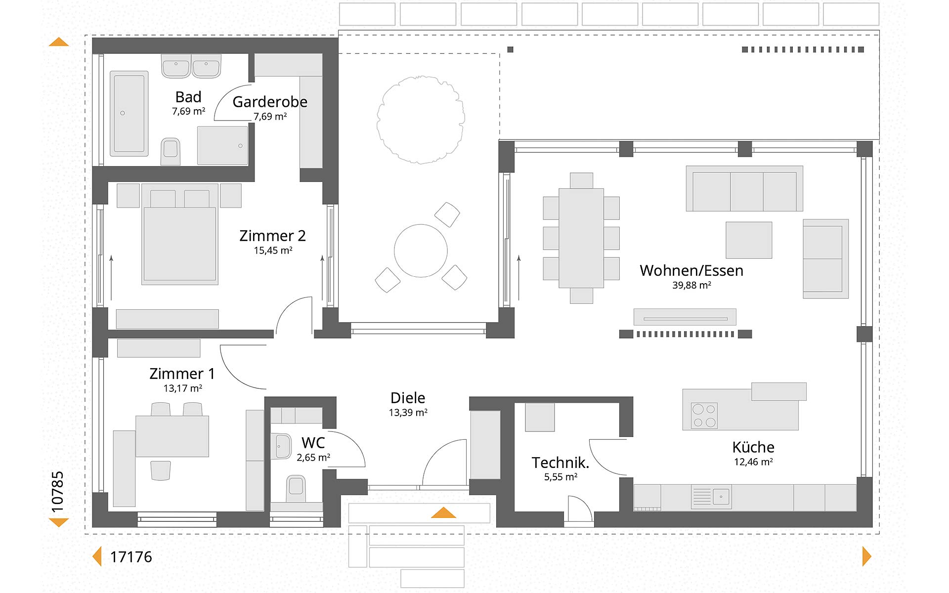
114,31 qm
Bauweise:
Fertighaus
Etagenzahl:
1
Dachform:
Satteldach 30°


Das Traumhaus der Zukunft

Ein attraktiver Bungalow mit beeindruckenden Panoramafenstern bereichert den Musterhauspark im Bauzentrum München Poing. Das Besondere an diesem stylischen Holz-Fertighaus der Marke NEXT by Danwood ist seine innovative Modulbauweise.

Wenn das neue Traumhaus nicht wie gewohnt in Form einzelner Wände, sondern als komplett ausgestattetes Bad, eingerichtete Küche oder fertig tapeziertes Schlafzimmer auf der Baustelle einschwebt, ist das die Zukunftsform des Bauens: Häuser in Modulbauweise. Die nahezu komplette Herstellung im Werk erspart enorm viel Zeit auf der Baustelle. Das Haus ist ca. zwei Wochen nach der Anlieferung fertig zum Einzug. Auch in Punkto Nachhaltigkeit ist die Modulbauweise vorausschauend der hohe Grad der Vorfertigung verkürzt Bauzeiten und schont Ressourcen: Elektro- und Sanitärinstallateure, Fliesenleger und Maler z.B. müssen nicht mehr von Baustelle zu Baustelle reisen, sondern erledigen ihre Arbeit unter optimalen Bedingungen im Werk. Das sichert neben Termintreue hervorragende Qualität und keinen witterungsbedingten Ausfall. Damit kann das Modulhaus wesentlich schneller geliefert werden als andere herkömmliche Fertighäuser.

Lieferung schlüsselfertig inklusive Maler, Fliesen, Vinylboden und Technikpaket Next (Infrarotheizung + Warmwasser-Wärmepumpe + Lüftungsanlage mit Wärmerückgewinnung + Smart Home + Photovoltaikanlage mit Speicher) ab OK Bodenplatte/Kellerdecke.
Information zum schlüsselfertigen Haus
Preis gilt inklusive Maler, Fliesen, Sanitär, Vinyl, Teppichboden und Technikpaket (Luft-Wasser-Wärmepumpe + Fußbodenheizung + zentrale Lüftungsanlage mit Wärmerückgewinnung) ab Oberkante Bodenplatte.
 
get social
Anschrift
Danwood S.A.- Zweigniederlassung Berlin
Justus-von-Liebig-Straße 7
12489 Berlin
Deutschland

Impressum - Datenschutz - AGB
MedienTeam Verlag GmbH & Co. KG - Verbindungsstraße 19 - D-40723 Hilden
Häuser - Hausbau - Ausbau - Technik - Draußen - Wohnen - News - Spezial - Gewinnspiel